Офис 78 м.кв., Поселок Художника
Обзор№ - 4601
| Тип | Офисное помещение |
| Площадь (м.кв) | 78 |
| Арендная плата (Помесячно) | 195 000 |
|---|---|
| Этаж | -1 |
| Этажность | 4 |
| Класс | B |
| Номер налоговой | 43 |
Адрес
| Улица | улица Сурикова |
|---|---|
| Номер дома | 24 |
| Метро | Сокол |
В избранное Офис 78 м.кв., Поселок Художника
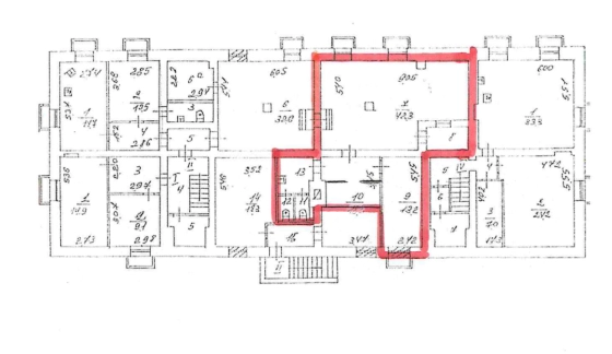
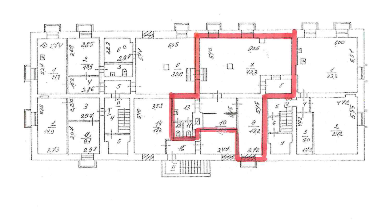
Офисное помещение с ремонтом, смешанная планировка. Окна в приямках. Есть свой санузел. Фото общие.
Бизнес Центр. Круглосуточная охрана, наземная парковка. Расположен в уникальном для Москвы месте, в "Поселке художников". Пешая доступность до метро Сокол, Октябрьское поле и станции МЦК Панфиловская. Здание относится к 43 ИФНС.
ВНИМАНИЕ! Уважаемые арендаторы, показ помещений осуществляется по предварительной договоренности. Записывайтесь на просмотр в удобное для Вас время.
ПРЯМАЯ АРЕНДА ОТ СОБСТВЕННИКА, БЕЗ КОМИССИИ.














































